24-STUNDEN-SERVICE⎪Anrufen: 06158/941160⎪Mail: info@wendel-gruppe.de ![]()
Hochbaukran mieten
Hochbaukran mieten
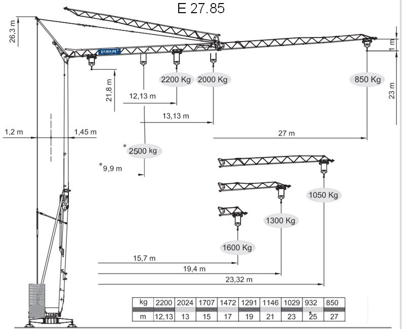
E 27.85 Turmdrehkran
| Aufbau | Anhänger |
| max. Hakenhöhe (m) bei Ausladung 27 m |
23,00 |
| Turmhakenhöhe (m) | 21,80 |
| max. Tragkraft (kg) bis 12,13 m | 2.200 |
| max. Spitzenlast (kg) | 850 |
| max. Ausladung (m) | 27,00 |
| Gewicht (kg) | 25200 |
| Transportlänge (m) | 13,25 |
| Transportbreite (m) | 2,45 |
| Transporthöhe (m) | 3,00 |
| Antrieb | 230V/400V |
| Abstützbreite (m) | 3,60 x 3,60 |
| Schwenkradius (m) | 1,95 |
| Ausstattung: |
|
| Optionales Zubehör: |
|
Zentrale Riedstadt
Bergfeldstraße 55-59
64560 Riedstadt
Tel. 06158 - 941160
Fax 06158 - 9411629
info@wendel-gruppe.de
Montag - Freitag: 07:00 - 17:00 Uhr
Abholung abgeschleppter Fahrzeuge:
Terminvereinbarung erforderlich!
Montag - Donnerstag 8:00 - 16:00 Uhr
Freitag 8:00 - 12:00 Uhr
Mietstation Oppenheim
Am Wattengraben 22
55276 Oppenheim
Tel. 06133 - 5722996
Fax 06133 - 5722998
rheinlandpfalz@wendel-arbeitsbuehnen.de
Montag - Freitag: 07:00 - 17:00 Uhr





